Fot. Stock Studios Photography | Arch. PJCArchitecture
  • Architekt

    PJCArchitecture
  • Fotograf

    Stock Studios Photography
  • Lokalizacja

    Indian Lake, Stany Zjednoczone

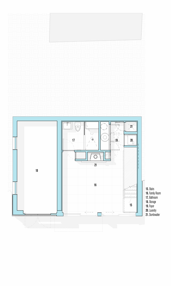
Komfortowy domw harmonii z naturą

PJCArchitecture stworzyło komfortowy dom dla małżeństwa na emeryturze, który komponuje się z otoczeniem i zapewnia przestronną przestrzeń do rozrywki. Projekt domu oparty jest na wrażliwości na sztukę oraz szacunku dla materialności i formy. Klienci mieli zdecydowane wizje estetyki, które łączyły czyste linie, proste detale japońskiej herbaciarni oraz wiejski charakter z wyrazistymi detalami. Studio PJCA pracowało nad tym, by pośredniczyć w tych sprzecznych wizjach, łącząc elementy obu koncepcji i tworząc spójną całość.

Fot. Stock Studios Photography | Arch. PJCArchitecture

Ostatecznie zdecydowano się na zastosowanie okładziny „Shou Sugi Ban”, przyjaznej dla środowiska technologii wykorzystującej opalane drewno. Ten materiał pomaga domowi zachować spójność z otoczeniem, jednocześnie podkreślając czyste linie. Projekt inspirowany jest rodzimą architekturą regionu, w tym dwuspadowymi dachami, drewnianymi bocznicami oraz kamiennymi ścianami, wprowadzając jednak nowoczesne spojrzenie na tradycyjne formy i materiały.

Fot. Stock Studios Photography | Arch. PJCArchitecture

Inspiracją dla formy domu było jego położenie na stromej zboczu porośniętym wysokimi drzewami, schodzącymi w dół do brzegu jeziora. Jednym z wyzwań były parametry zagospodarowania przestrzennego, które wymagały ograniczenia powierzchni. Wejście do domu od strony podjazdu daje wrażenie skromnego, jednopoziomowego budynku z dwuspadowym dachem, o prostej bryle. Po przekroczeniu mostu prowadzącego do głównego wejścia, odwiedzający odkrywają, że znajdują się na najwyższym poziomie, z dwoma dodatkowymi poziomami domu poniżej.