Fot. Ester Havlova | Arch. A2F ARCHITECTS
  • Architekt

    A2F ARCHITECTS
  • Fotograf

    Ester Havlova
  • Lokalizacja

    Średniogórze Czeskie, Czechy

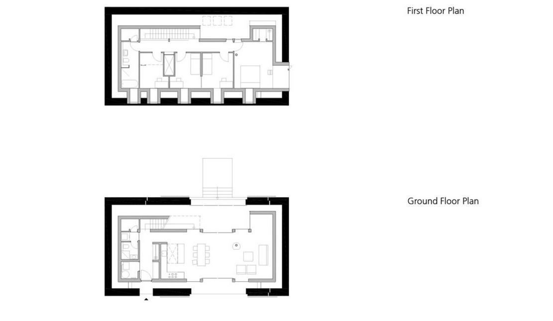
Dom w tradycyjnejczeskiej STODOLE

Dom rodzinny w tradycyjnej czeskiej STODOLE. Tradycyjna STODOŁA z XIX wieku przeistoczyła się w dom rodzinny, dzięki dołożeniu wewnątrz drewnianej konstrukcji. Budynek na Średniogórzu Czeskim, reprezentuje innowacyjny i być może przyszłościowy sposób zachowywania tradycyjnego budownictwa, oferując w tym samym czasie współczesne warunki mieszkalne. Projekt jest oryginalnym hołdem dla pracy i dokonań naszych przodków. Jednocześnie stał się wygodnym domem, odpowiadając też obecnym normom zużycia energii. Zadanie wykorzystania budynku do innych funkcji, niż oryginalne, nie było w tym przypadku przeszkodą. Oceniane było to jako potencjał do stworzenia ekologicznego budynku.

Fot. Ester Havlova | Arch. A2F ARCHITECTS

Architekt i klienci chętnie zaangażowali się w ten eksperyment budowlany. Wymagał on nieortodoksyjnych rozwiązań dla aranżacji przestrzeni, wyboru materiałów i wykończenia, które miało być bardziej praktyczne, niż standardowe. Część przyjaciół i krewnych namawiała właścicieli, by stworzyli coś nowego. Bez wątpienia byłoby szybszym rozwiązaniem, ale na pewno nie miałoby takiego charakteru.

Fot. Ester Havlova | Arch. A2F ARCHITECTS

STODOŁĘ zbudowano z grubych na 60 cm kamiennych ścian i nie ma fundamentów. Niechęć do zmiany wyglądu STODOŁY od zewnątrz, w połączeniu z koniecznością ocieplenia, skutkowały pomysłem wybudowania nowego budynku wewnątrz starego. Stary budynek z kamienia stał się osłoną od deszczu, a nowa konstrukcja drewniana służy jako część odporna na wiatr i zimno. Pośrodku powstała przestrzeń nieogrzewana, która jednak powiększa część mieszkalną domu. Ta przestrzeń, zamykając cały budynek poza jego południową fasadą, działa jak płaszcz, obniżając koszty zużycia energii, oraz regulując temperaturę w lecie.

Fot. Ester Havlova | Arch. A2F ARCHITECTS

Wewnętrza konstrukcja drewniana pełni jeszcze inne funkcje. Ma tak szczególne miejsca jak klatka schodowa, która podkreśla charakter całości. Dodatkowo nowa konstrukcja przejmuje część funkcji starego budynku, ponieważ to właśnie na niej opiera się stary dach. Podczas budowy usunięto bowiem część starej konstrukcji, zastępując ją nową. To co zostało usunięte trafiło tu jednak z powrotem, stając się np. schodami wewnętrznymi.

Fot. Ester Havlova | Arch. A2F ARCHITECTS

Ogromne przeszklenia rozmywają granice drewnianego budynku i łączą to co wewnętrzne z tym, co na zewnątrz. Dwoje ogromnych drzwi od STODOŁY – po stronie północnej i południowej – tworzy wrażenie połączenia z otaczającą przyrodą.