Fot. Charlie Schuck | Arch. Suyama Peterson Deguchi

Prostota i harmoniaw sercu Seattle

Dom „Junsei” powstał dla klientów pragnących uprościć swoje życie i zamieszkać w minimalistycznym otoczeniu. Zlokalizowany w zachodniej części Seattle, projekt łączy prostotę, wydajność i spokój, oferując schronienie przed chaosem współczesnego świata.

Fot. Charlie Schuck | Arch. Suyama Peterson Deguchi

Budynek o wymiarach 24x5,5 m harmonijnie wpisuje się w krajobraz Puget Sound. Aby zachować bujną roślinność, architekci zaprojektowali dom tak, by nie ingerować w korzenie drzew. „Centralnie rosnące drzewa stały się elementem projektu, podkreślając otoczenie i tworząc grę widoków” – tłumaczą autorzy.

Fot. Charlie Schuck | Arch. Suyama Peterson Deguchi

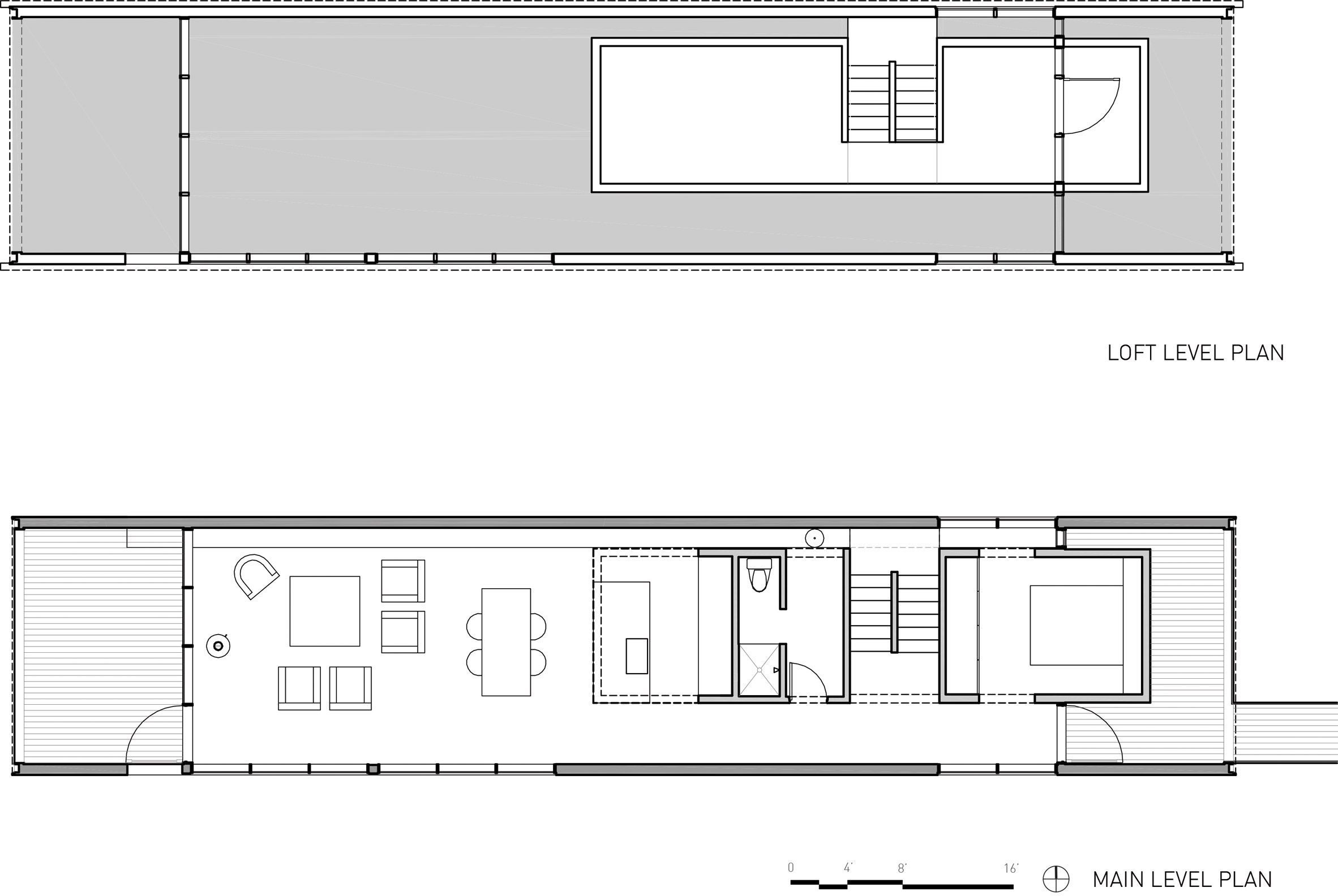
Wejście do domu prowadzi przez drewniany pomost na środkowy poziom, gdzie znajduje się przestrzeń zewnętrzna i przeszklona ściana. Obok zlokalizowano sypialnię główną oraz klatkę schodową, prowadzącą do kuchni otwartej na wysoki salon. W salonie, wykończonym sklejką, duże okna zachodniej ściany wpuszczają naturalne światło i oferują widok na drzewa i wodę. Z salonu można wyjść na taras. Górny poziom mieści biuro w loftowym stylu, a dolny – pomieszczenia użytkowe i parking.

Fot. Charlie Schuck | Arch. Suyama Peterson Deguchi

Dwuspadowy dach oraz elewacja z blachy falistej nadają budynkowi nowoczesnego, a zarazem tradycyjnego charakteru. Wnętrza dominują naturalne materiały, takie jak drewno, podkreślając minimalistyczny styl nowoczesnej stodoły.