Fot. Ingrid Rasmussen | Arch. Crawshaw Architects

Biblioteka i biuro wdawnej oborze

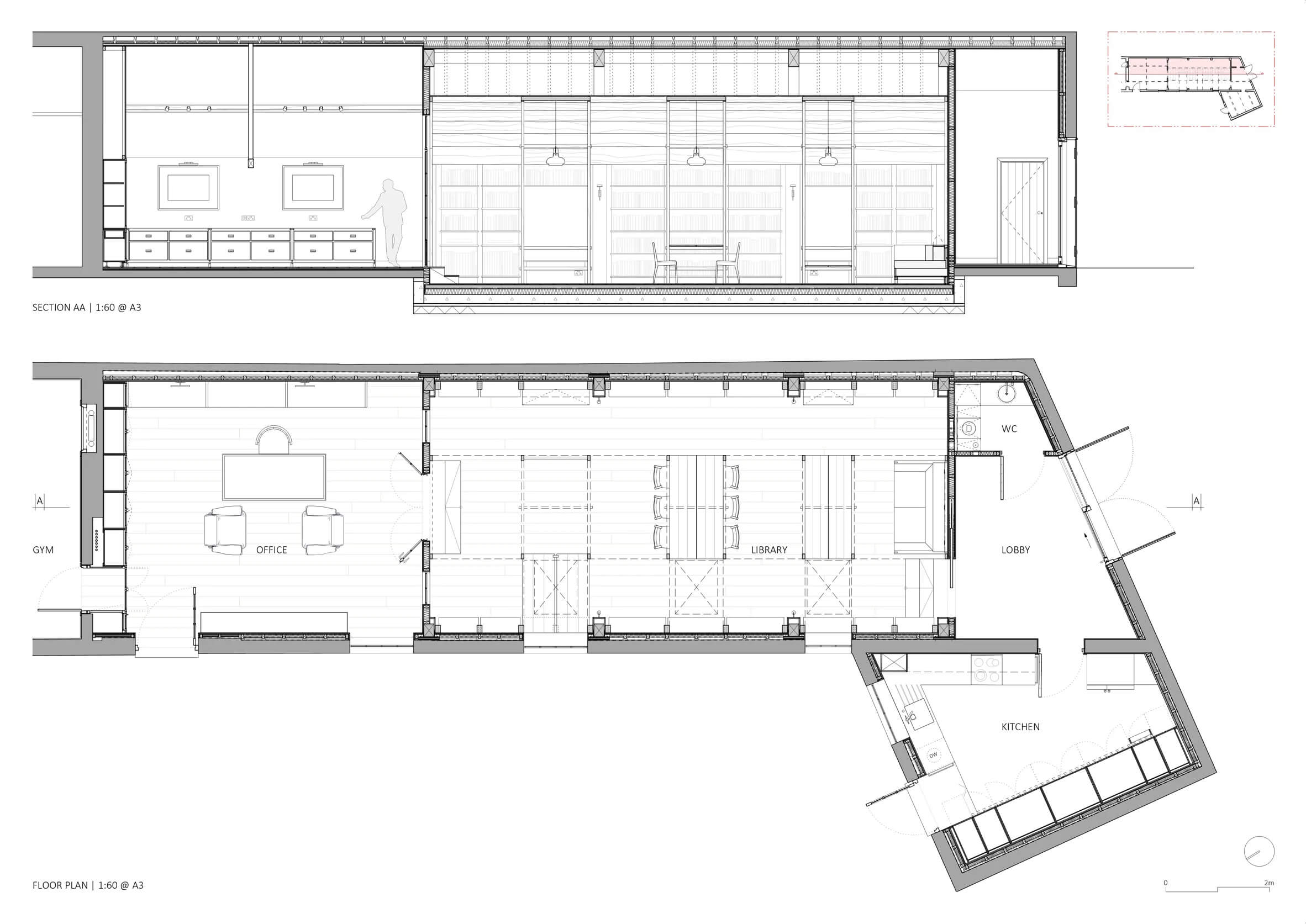
Londyńskie studio Crawshaw Architects przekształciło dawną oborę w nowoczesną stodołę, która pełni funkcję biblioteki i biura. Budynek, będący częścią gruzińskiego gospodarstwa wiejskiego Stanbridge Mill, przez lata zaniedbany, zyskał nowe życie dzięki subtelnej adaptacji, która zachowuje jego historyczny charakter.

Fot. Ingrid Rasmussen | Arch. Crawshaw Architects

Centralnym punktem wnętrza jest drewniana arkada, inspirowana klasyczną architekturą palladiańską, która nawiązuje do kolekcji książek właściciela. Biblioteka mieści „nawę” z miejscami do siedzenia pomiędzy półkami na książki, wykonanymi z litego dębu. Biurka ustawiono tak, by maksymalnie wykorzystać światło z okien, a wieczorem przestrzeń doświetlają duże lampy wiszące.

Fot. Ingrid Rasmussen | Arch. Crawshaw Architects

Biuro znajduje się w północnej części budynku, oddzielone od biblioteki szklanymi drzwiami łukowymi. Dodatkowo budynek mieści małą kuchnię oraz łazienkę. Projekt łączy funkcjonalność, klasyczną estetykę i szacunek dla historii, czyniąc tę przestrzeń idealnym przykładem nowoczesnej stodoły.