Fot. Thomas Janssens | Arch. DMOA Architecten

Połączenie historiiz nowoczesnością

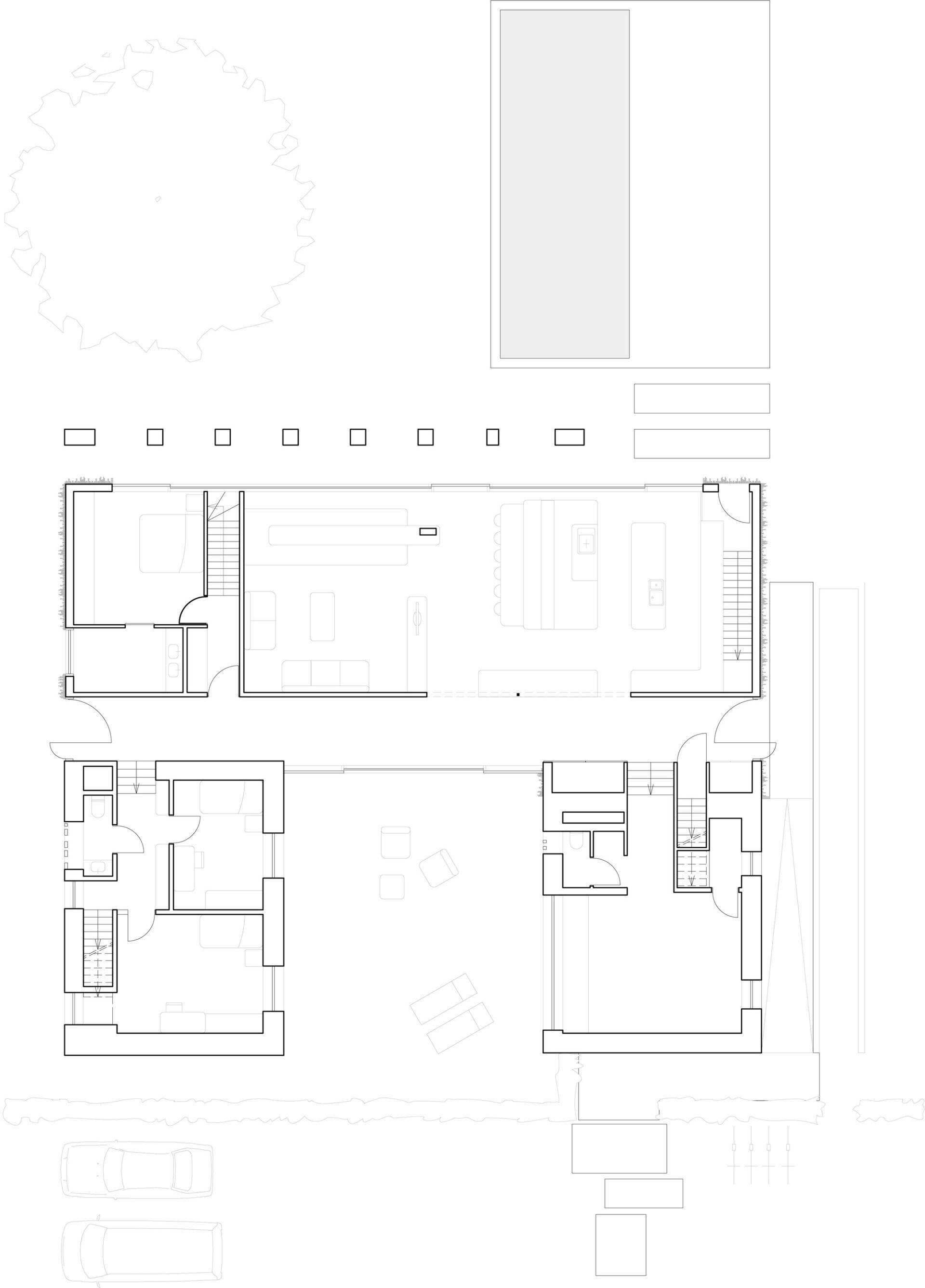
Nowa część to surowe, czarne powierzchnie, widoczne od strony ogrodu. W niektórych miejscach zachowano pozostałości starych murów, które teraz stały się elementami ogrodu, pogłębiając specyficzną atmosferę tego budynku. Idąc przez dom, nieprzerwanie czuje się to zespolenie nowego i starego. Projekt obejmował renowację starego miejsca wypoczynku dla myśliwych z cegły, ukrytego w lasach w rejonie Heverlee w Belgii. Teraz jest to wygodne i nowoczesne mieszkanie dla rodziny z czworgiem dzieci. Jedno z trzech skrzydeł układu „U” usunięto poza ścianą fasadową, którą zachowano wraz z nazwą starego budynku. Stała się jednocześnie nazwą nowego projektu: „La Branche”.

Fot. Thomas Janssens | Arch. DMOA Architecten

Ściany boczne budynku, wykonane z cegły, kryją pomieszczenia prywatne rodziny, a czarna część to salon i kuchnia, które na stałe zostały połączone z basenem i ogrodem. Ciemne kolory tego wnętrza wyraźnie kontrastują z dużą ilością naturalnego światła, które wpada tu przez duże przeszklenia.