Idealny dla współczesnej rodziny
Poszukiwanie domu, który łączy komfort, energooszczędność i przemyślane rozwiązania, wcale nie musi być trudne. Zwłaszcza gdy do wyboru jest nowoczesny dom szkieletowy, oferujący świetną izolację, elastyczność aranżacji i wyjątkowo szybką budowę. Projekt MDDOM 109 P.E to propozycja stworzona z myślą o rodzinach, które chcą mieszkać wygodnie, funkcjonalnie i nowocześnie – bez kompromisów. To dom drewniany, który łączy przyjazną naturze technologię z praktycznym układem pomieszczeń, tworząc przestrzeń idealną do życia na co dzień.
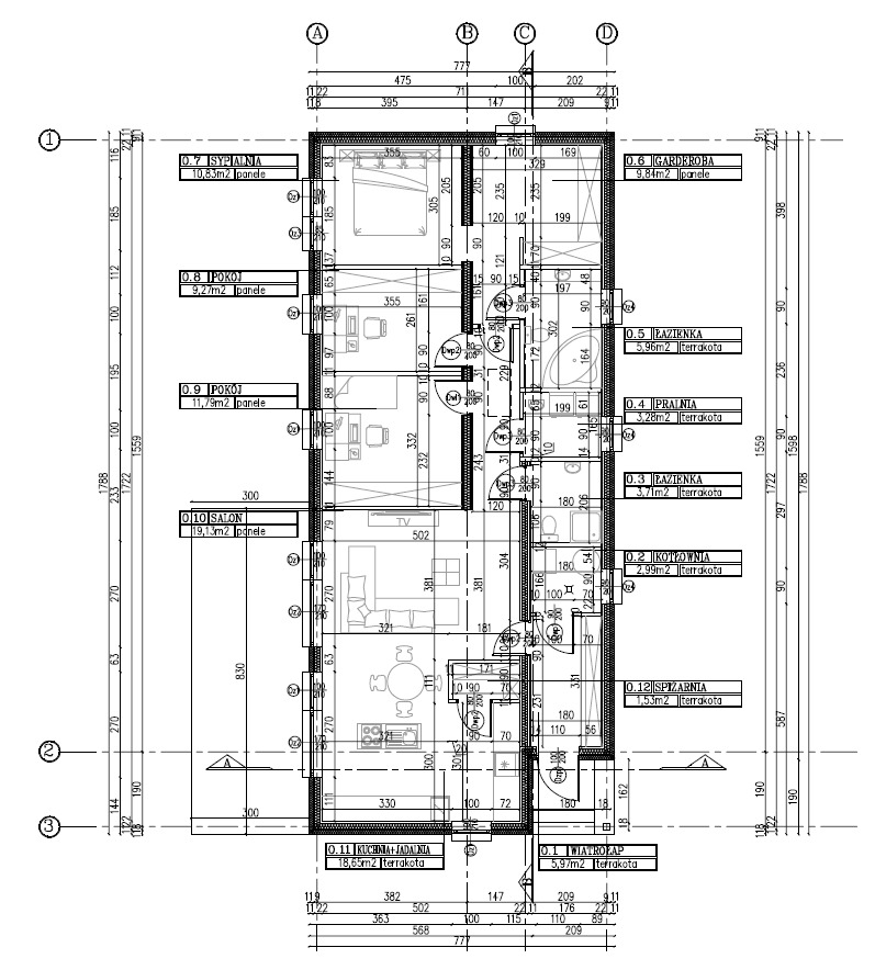
Przestrzeń dopasowana do codziennych potrzeb
Ten projekt wyróżnia się układem, który ułatwia życie na co dzień. Znajdziesz tu wszystko, co tworzy harmonijny i praktyczny dom:
- 3 wygodne pokoje – idealne jako sypialnie, pokój dziecięcy lub gabinet
- 2 pełne łazienki – koniec porannych kolejek
- Garderoba – więcej porządku na co dzień
- Pralnia – osobna przestrzeń pozwalająca zapanować nad domowymi obowiązkami
- Kotłownia – praktyczne zaplecze techniczne
- Przestronny salon – serce domu, pełne światła
- Kuchnia z jadalnią i spiżarnią – maksymalnie funkcjonalna i gotowa na rodzinne gotowanie
To układ, który pozwala każdemu domownikowi znaleźć miejsce dla siebie, jednocześnie tworząc przestrzeń sprzyjającą wspólnemu spędzaniu czasu.
Dom, w którym po prostu dobrze się żyje
MDDOM 109 P.E to nie tylko projekt – to wizja komfortowego życia w nowoczesnej przestrzeni. Połączenie przemyślanej funkcjonalności z estetyką sprawia, że każdy dzień staje się wygodniejszy, spokojniejszy i bardziej harmonijny. To doskonały wybór dla rodzin, które chcą czerpać pełnię radości z własnej nowoczesnej stodoły, mając pewność, że została zaprojektowany z troską o detale i dobro domowników.
