Alternatywa dla życia w bloku
MDDOM 44 v1 to nowoczesny domek rekreacyjny w stylu stodoły, zaprojektowany z myślą o osobach poszukujących alternatywy dla mieszkania w bloku oraz życia bliżej natury. Kompaktowa, a jednocześnie bardzo funkcjonalna bryła łączy współczesną architekturę z prostotą i ponadczasową estetyką nowoczesnej stodoły.
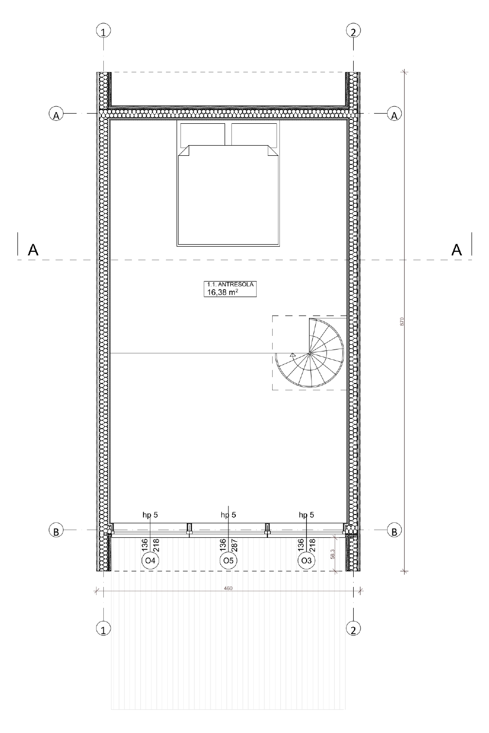
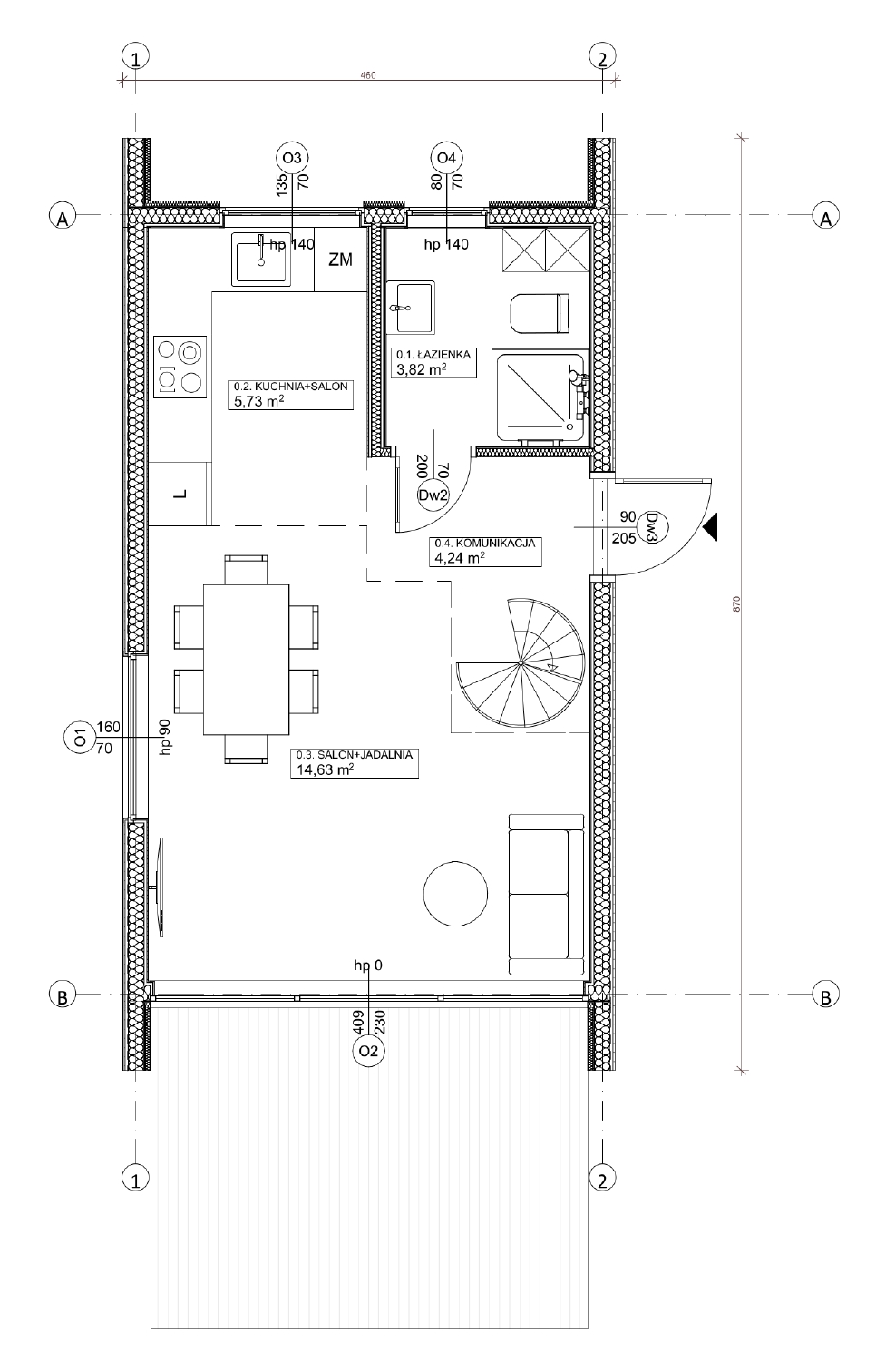
Powierzchnia użytkowa domku wynosi 38,0 m² (aż 44,7 m² po podłodze), co pozwala na komfortowe użytkowanie zarówno w trybie weekendowym, jak i całorocznym. Przemyślany układ wnętrza maksymalnie wykorzystuje każdy metr przestrzeni, zapewniając wygodę i swobodę aranżacji. Na parterze znajduje się jasny, otwarty salon z aneksem kuchennym, który dzięki dużym przeszkleniom wypełnia się naturalnym światłem i płynnie łączy wnętrze z otaczającym krajobrazem. Funkcjonalna łazienka dopełnia strefę dzienną. Na antresoli zaprojektowano przytulną przestrzeń sypialnianą, idealną do odpoczynku i regeneracji.
MDDOM 44 v1 to idealny wybór dla osób ceniących nowoczesne domki rekreacyjne, niezależność, minimalistyczny design oraz możliwość życia w harmonii z naturą. Sprawdzi się jako domek letniskowy, całoroczny domek rekreacyjny lub niewielki dom mieszkalny na działkę poza miastem.
