Fot. Maureen M. Evans, WalikingMexico | Arch. Raúl Galindo + Patricio Galindo

Ekologiczny hotel i ośrodekwypoczynkowy w górach

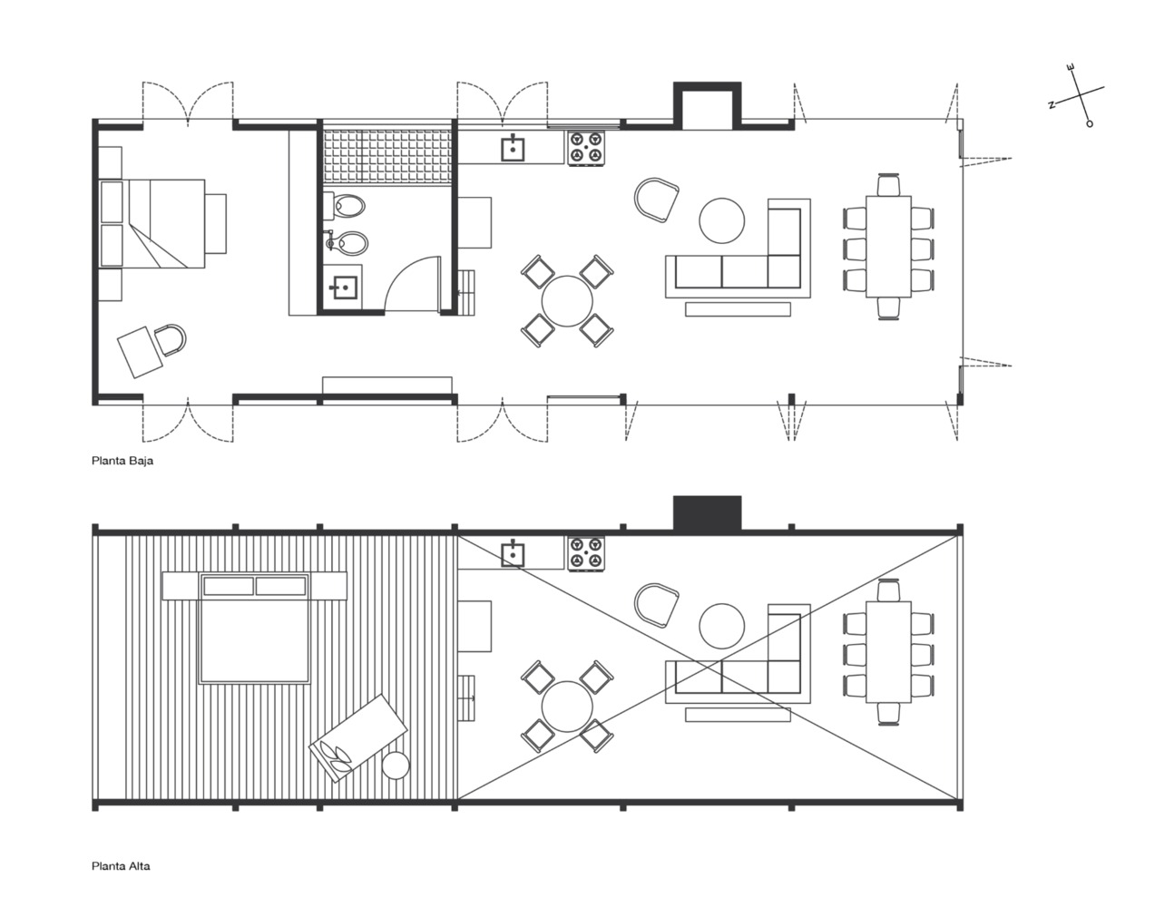
Na obrzeżach wulkanu Nevado de Toluca, w malowniczym miasteczku Valle de Bravo, znajduje się Mi Cielo – ekologiczny hotel i ośrodek wypoczynkowy. Ten wyjątkowy projekt składa się z trzech domków, jednego domu głównego, ogrodu warzywnego oraz kuchni na świeżym powietrzu. Mi Cielo, położone w odosobnieniu w górach, opiera się na zasadach zrównoważonego rozwoju, wykorzystując światło świec, energię słoneczną, system zbierania wody deszczowej oraz toalety kompostujące. Wszystkie materiały budowlane, takie jak drewno sosnowe i kamień, pochodzą z lokalnych źródeł, co podkreśla bliskość z naturą i szacunek dla środowiska.

Fot. Maureen M. Evans, WalikingMexico | Arch. Raúl Galindo + Patricio Galindo

Projekt Mi Cielo jest wciąż w toku i nieustannie dostosowuje się do otaczającego go krajobrazu. Choć wszystkie domki bazują na tych samych materiałach i systemie konstrukcyjnym, każdy z nich ma swoją unikalną osobowość, wyróżniając się wnętrzami, lokalizacją i programem architektonicznym. Dzięki współpracy z lokalnymi rzemieślnikami i konstruktorami, którzy pracowali razem z właścicielami i architektami, stworzono przestrzeń, która nie tylko zapewnia komfort, ale także generuje świadomość ekologiczną i szacunek do natury.

Fot. Maureen M. Evans, WalikingMexico | Arch. Raúl Galindo + Patricio Galindo

Mi Cielo to prawdziwa oaza ekologicznego luksusu, gdzie prostota łączy się z nowoczesnym podejściem do zrównoważonego rozwoju, a natura stanowi integralną część doświadczenia gości.