Fot. Dylan Perrenoud | Arch. Giona Bierens de Haan Architectures

Alpejski domw szwajcarskiej wiosce Zinal

Jasne drewniane wykończenia charakteryzują wnętrze górskiego domku Perfect Day House, który został odnowiony przez szwajcarskie studio Giona Bierens de Haan Architectures.

Dom położony w Zinal, górskiej wiosce w Szwajcarii, został odnowiony, a wnętrze zostało zorganizowane wokół centralnej wspólnej przestrzeni mieszkalnej. Oprócz przekształcenia wnętrza, Giona Bierens de Haan Architectures wymieniło dach domku i dodało nowe okna, zachowując jednocześnie wygląd zewnętrzny, który łączy oryginalną fasadę z dodatkami z lat 80.

Fot. Dylan Perrenoud | Arch. Giona Bierens de Haan Architectures

„Konstrukcja została wykonana z kwadratowych bali, typowej szwajcarskiej konstrukcji górskiej, w której masywne drewniane elementy są osadzone w narożnikach budynku, aby zapewnić stabilność, ale rozbudowa zbudowana w latach 80. naśladowała ten styl bez poszanowania techniki budowlanej” – mówi studio.

„Domek był więc konstrukcją, która naśladowała stary tradycyjny domek, nie będąc nim w rzeczywistości. Był trochę jak patchwork różnych okresów i technik budowlanych”.

Fot. Dylan Perrenoud | Arch. Giona Bierens de Haan Architectures

Aby spełnić obecne standardy, studio ociepliło całą konstrukcję od wewnątrz, dzięki czemu ciemnobrązowa, drewniana elewacja domu została w pełni zachowana. Tradycyjny domek, zwieńczony dwuspadowym dachem, ma kamienną okładzinę ścienną u podstawy, rozbijającą całkowicie drewnianą fasadę.

Podczas gdy zmiany w wyglądzie zewnętrznym domu pozostały minimalne, inne zmiany obejmują dodanie nowych okien na południowej fasadzie i dodanie bardziej tradycyjnego dachu, który wykorzystuje szwajcarską technikę obejmującą cienkie drewniane gonty.

Fot. Dylan Perrenoud | Arch. Giona Bierens de Haan Architectures

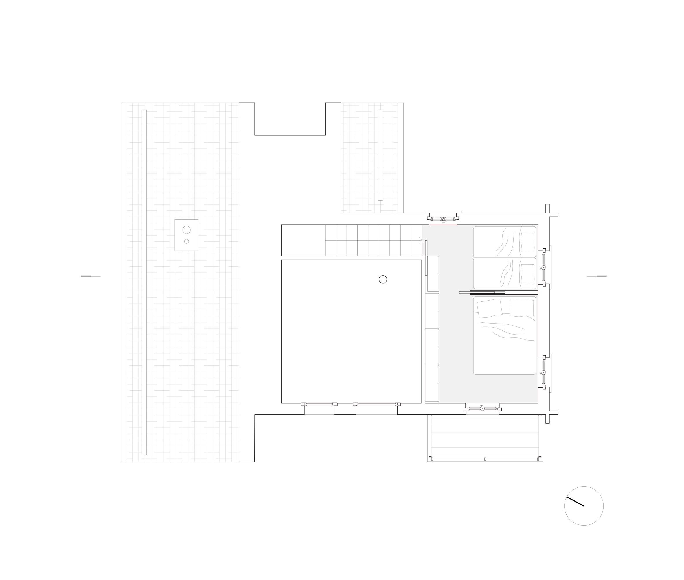
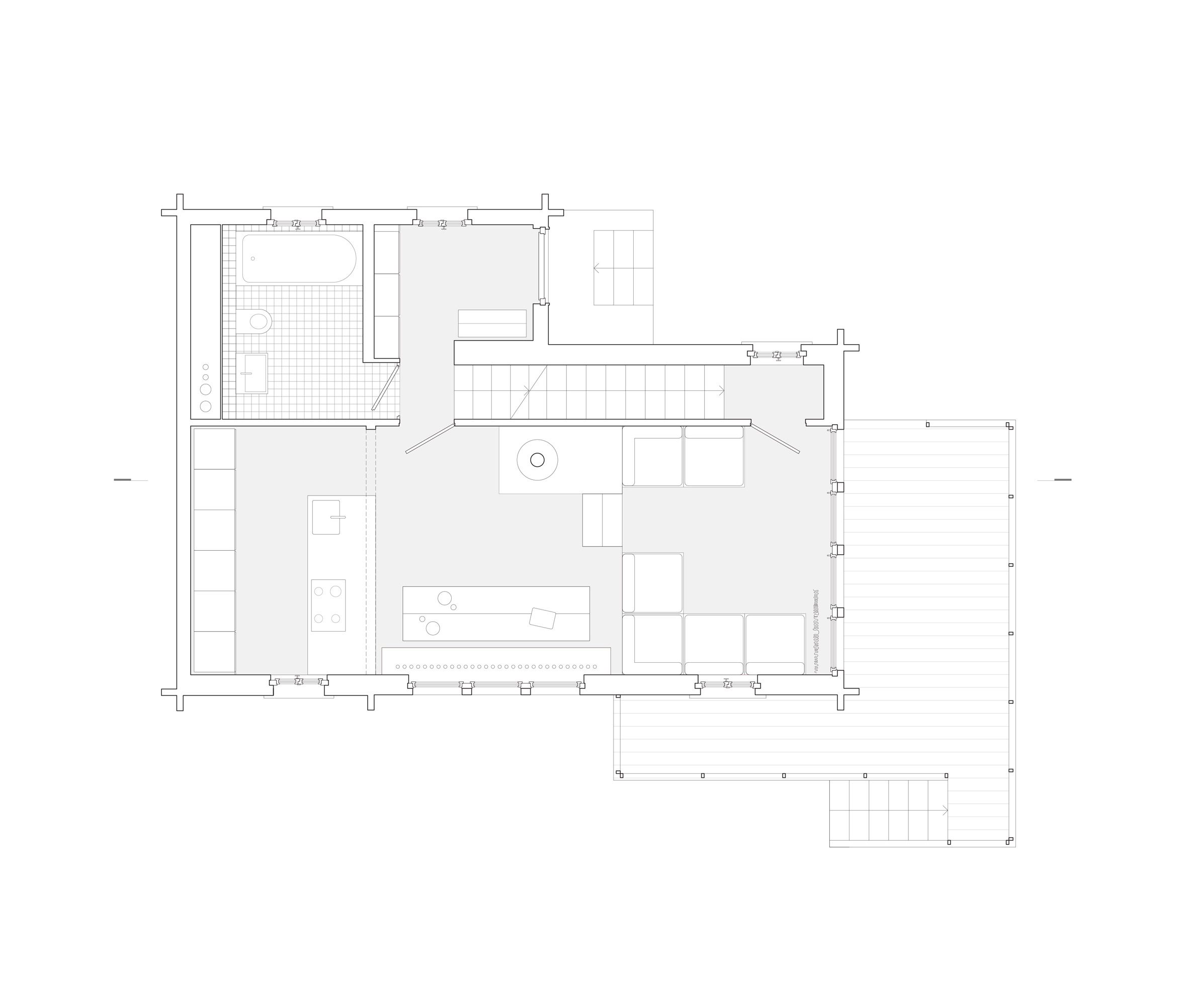
Przestrzenie zostały rozmieszczone wokół otwartej przestrzeni mieszkalnej i kuchni, które zajmują niemal cały parter, poza klatką schodową i wyłożoną terakotą łazienką.

Pomimo otwartego planu, połączona kuchnia i część dzienna charakteryzują się stopniem oddzielenia dzięki dwupoziomowemu układowi, z podwyższoną kuchnią flankowaną przez zagłębiony kącik wypoczynkowy. Podobnie jak reszta domu, obie przestrzenie charakteryzują się jasnymi drewnianymi ścianami i stolarką, a także jasnymi meblami, które nadają wnętrzu jasny charakter. Obok otwartej przestrzeni dziennej znajduje się klatka schodowa wyłożona jasnym drewnem, która prowadzi na poziom antresoli. Antresola zwieńczona jest dwuspadowym sufitem i ma przesuwaną ścianę, którą można pozostawić otwartą lub zamkniętą, tworząc jedną wspólną sypialnię lub dwa oddzielne pokoje, w których mogą spać dwie osoby. Z głównej sypialni para szklanych drzwi prowadzi na balkon, z którego roztacza się rozległy widok na góry. Na dole, w piwnicy, znajdują się dwie dodatkowe sypialnie, a także kolejna łazienka i mniejsze przestrzenie z wbudowanymi szafami i dodatkową przestrzenią do przechowywania.