Fot. Mateo Pérez Correa | Arch. Rubén Gómez Gañán

Schronienie wśródgór i mgieł

Na wysokości ponad 3000 metrów n.p.m., w kolumbijskim płaskowyżu Chingaza, powstała niewielka chata – azyl dla tych, którzy szukają oddechu poza miejskim rytmem. Oddalona o zaledwie godzinę drogi od Bogoty, ta górska rezydencja otwiera się na krajobraz rezerwatu San Rafael oraz unikalny mikroekosystem pełen kolibrów i endemicznych roślin. Jej architektura to próba dialogu między człowiekiem a naturą – intymnego, ale nieinwazyjnego.

Fot. Mateo Pérez Correa | Arch. Rubén Gómez Gañán

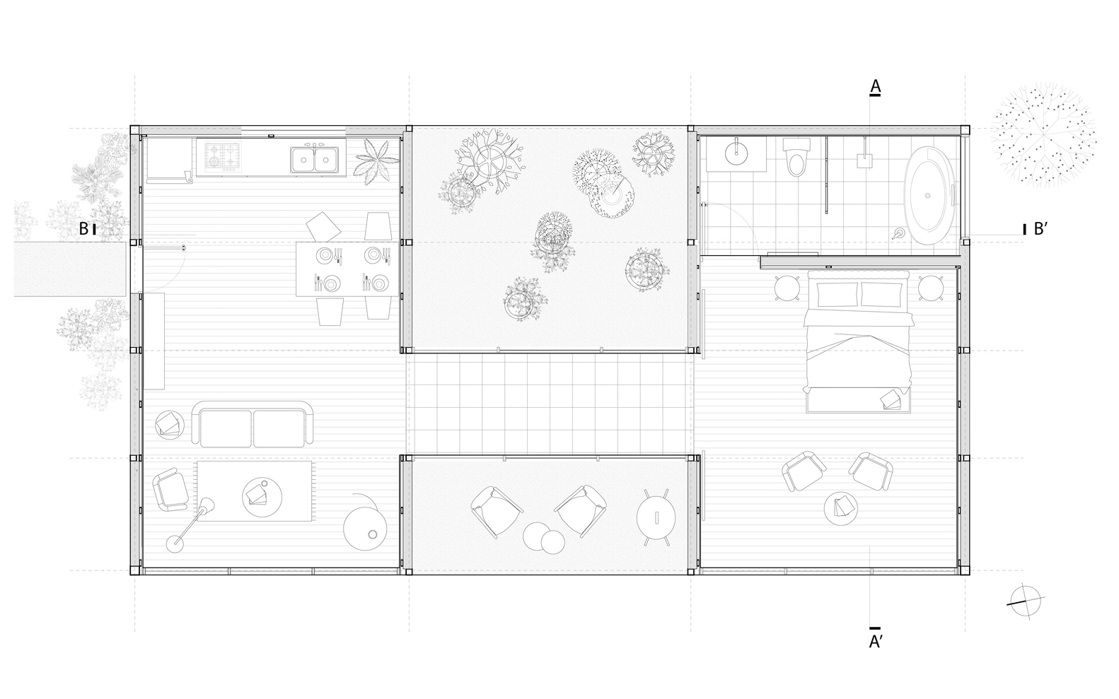
Dwa moduły, jedno doświadczenie przestrzeni

Dom składa się z dwóch modułów połączonych przeszklonym tunelem. To nie tylko ciąg komunikacyjny – to główna oś doświadczenia krajobrazu. Od wschodu otwiera się na ogród kolibrów, od zachodu – na spektakularne widoki na góry Chingazy i zachodzące słońce. Przeszklony korytarz działa jak pułapka ciepła, pozwalając wnętrzom lepiej znosić duże wahania temperatury – od zera w nocy do ponad 20°C w dzień.

Minimalizm, który otula

Wnętrza wykończone są w całości drewnem sosnowym – listwy pokrywają podłogi, ściany i sufity, tworząc ciepłą, naturalną atmosferę. To przestrzeń minimalistyczna, ale nie surowa – raczej kontemplacyjna i świadomie uproszczona, by nie konkurować z otaczającą przyrodą. W każdym z dwóch modułów umieszczono panoramiczne okno, które nie tylko kadruje krajobraz, ale również pełni funkcję biernego źródła ciepła.

Fot. Mateo Pérez Correa | Arch. Rubén Gómez Gañán

Czerń i światło – architektura zmienności

Z zewnątrz dom wpisuje się w surowy charakter wysokogórskiego płaskowyżu. Pokryty czarną blachą, zlewa się z szarym niebem i roślinnością, by nocą niemal całkowicie zniknąć. Pozostają jedynie dwa świetlne prostokąty – okna, przez które wnętrze wysyła sygnał obecności. Czerń elewacji tworzy kontrast dla ciepłego drewna i światła wewnątrz, podkreślając rolę światła jako emocjonalnego składnika architektury.

Architektura dla ludzi i kolibrów

Wartość tego projektu nie polega jedynie na umiejętnym wpisaniu w krajobraz. To dom, który buduje przestrzeń dla spotkań – zarówno ludzkich, jak i tych międzygatunkowych. Ogród kolibrów w centrum domu, okna kierujące wzrok ku górom, przestrzeń tarasowa do obserwacji – to wszystko buduje relację z miejscem. Dom w Chingaza to propozycja zamieszkania, które nie dominuje, lecz wsłuchuje się w to, co naturalne, ciche i trwałe.