Architekt
Fotograf
Strona internetowa
Lokalizacja
Kanada
Nowoczesny dom z imponującym przeszkleniem
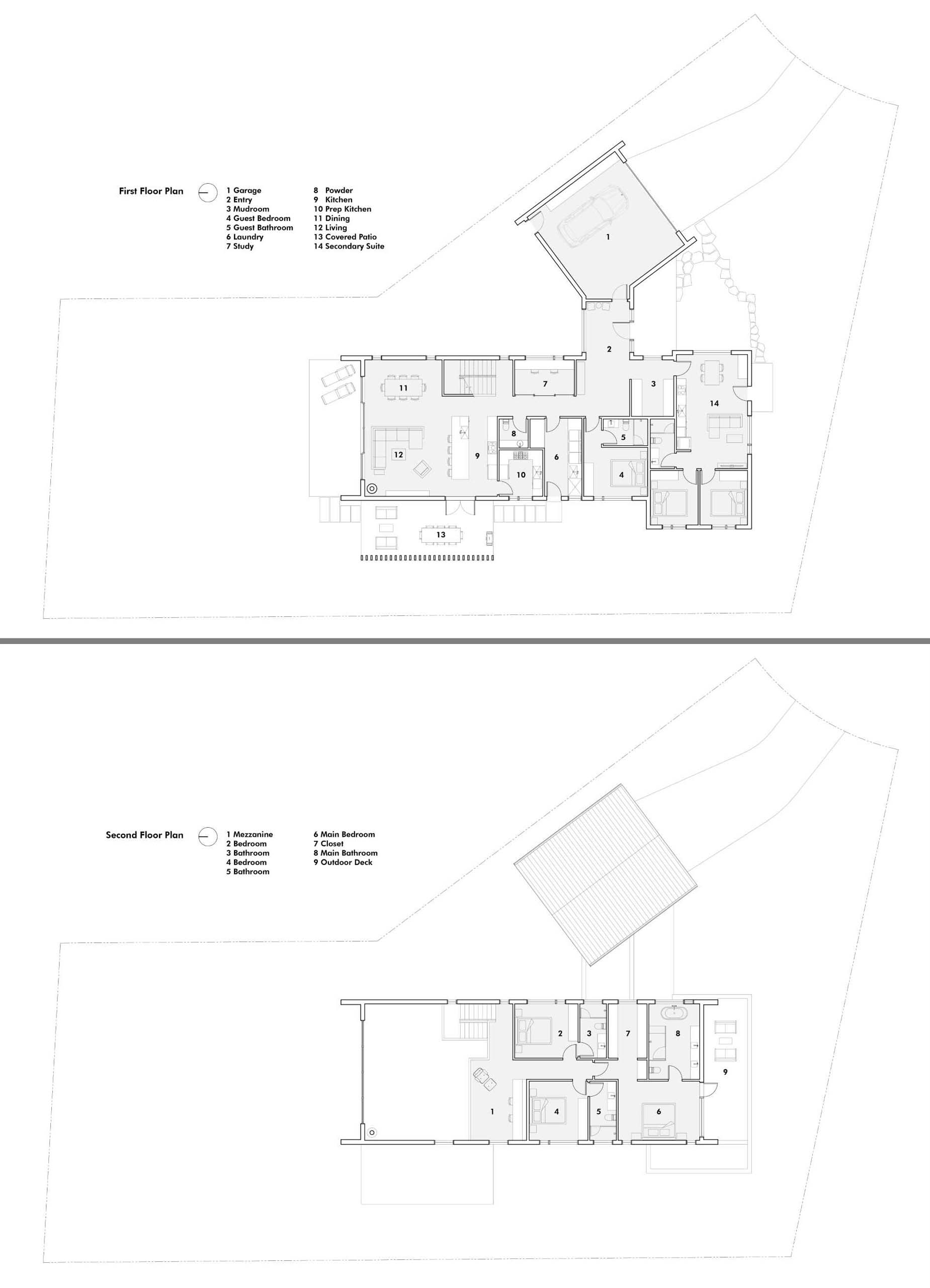
BLA Design Group zaprezentowało wyjątkowy projekt nowoczesnego domu w stylu stodoły, który powstał w Kolumbii Brytyjskiej (Kanada). Budynek został zaprojektowany z myślą o młodej rodzinie, tak aby sprzyjał aktywności, integracji i poczuciu bliskości domowników.
Dom usytuowany jest na nieregularnej działce na końcu ślepej uliczki. Architekci podzielili go na dwie główne bryły – jedną przeznaczoną na garaż, a drugą na część mieszkalną – połączone przeszklonym łącznikiem. To właśnie on, już od wejścia, daje wgląd w ogród i otaczającą zieleń.
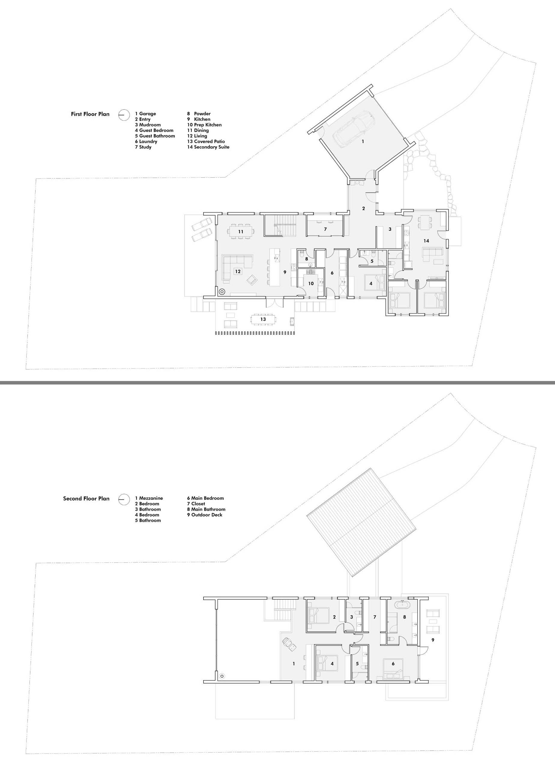
Antresola i piętro
Otwarta klatka schodowa prowadzi na piętro, gdzie znajduje się antresola. Jej układ pozwala na odpoczynek, naukę czy pracę zdalną, a jednocześnie utrzymuje poczucie kontaktu z przestrzenią dzienną poniżej.
Strefa prywatna
W jednej z sypialni uwagę przyciąga wyraziste, niebieskie dzieło sztuki, które ożywia wnętrze. Obok łóżka zawieszono nowoczesną lampę wiszącą, pełniącą funkcję lampki nocnej.
Łazienka en-suite imponuje funkcjonalnością i elegancją – znajduje się w niej podwójna umywalka, przestronny prysznic typu walk-in oraz wolnostojąca wanna ustawiona przy oknie, z którego można podziwiać otoczenie.
Przestrzeń dzienna z charakterem
Centralnym punktem domu jest otwarta strefa dzienna obejmująca salon, jadalnię i kuchnię. Przestrzeń ta wyróżnia się imponującym sklepieniem, którego wysokość w szczycie sięga 7 metrów. Wielkoformatowe okno o kształcie odpowiadającym geometrii dachu otwiera wnętrze na ogród, zapewniając nieprzerwany kontakt z naturą.
Z kuchni można wyjść na zadaszony taras, który został pomyślany jako strefa jadalni i relaksu na świeżym powietrzu. To idealne miejsce na wspólne posiłki i spotkania w gronie przyjaciół.
Inteligentny dom z systemem Grenton Smart Home
Wnętrza tego domu aż proszą się o wsparcie technologii, która dopełnia komfort codziennego życia. Idealnym rozwiązaniem byłby tutaj system Grenton Smart Home – pozwalający sterować oświetleniem, ogrzewaniem, systemem audio, a także automatycznym podlewaniem ogrodu.
Nowoczesny system inteligentnego domu sprawiłby, że wysokie przeszklenia, zadaszony taras, otwarte przestrzenie i ogród zyskałyby dodatkową funkcjonalność. Dzięki temu dom nie tylko zachwycałby architekturą i designem, ale również oferowałby pełną wygodę, energooszczędność i bezpieczeństwo.
