Fot. Peter Mathew | Arch. BIOTOPE ARCHITECTURE + INTERIORS

Dom nad jezioremz widokiem na eukaliptusowy las

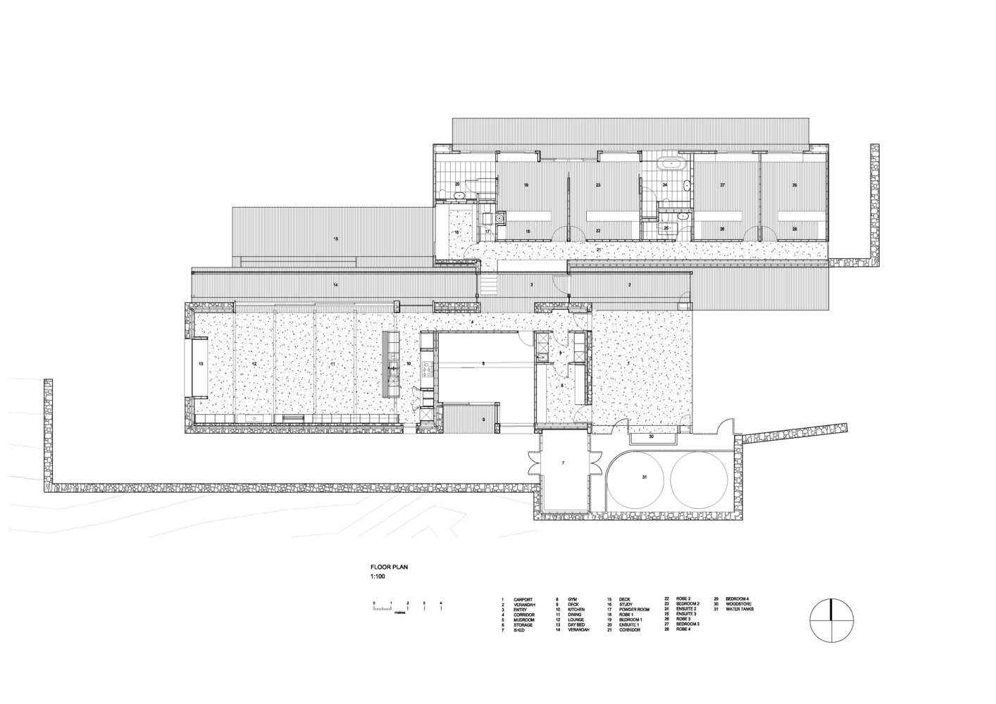
W sercu malowniczego krajobrazu Chile, w otoczeniu jeziora i eukaliptusowego lasu, powstał wyjątkowy dom jednorodzinny, zaprojektowany z myślą o pełnej integracji z otaczającą przyrodą. Inspiracją dla projektu stała się lokalna topografia oraz pasywne zasady projektowania architektonicznego, które umożliwiły maksymalne wykorzystanie energii słonecznej. Dwie linearne bryły, przypominające stodoły, zostały ustawione wzdłuż siebie i połączone werandą, która pełni rolę wejścia i tarasu. Przeszklone elewacje otwierają wnętrza na spokojny pejzaż, a z każdego pomieszczenia rozciąga się widok na las i jezioro. Dzięki usytuowaniu na północ, słońce naturalnie dogrzewa dom, a inteligentne rozmieszczenie okien i świetlików zapewnia odpowiednie nasłonecznienie przez cały rok.

Fot. Peter Mathew | Arch. BIOTOPE ARCHITECTURE + INTERIORS

Rozdzielenie budynku na dwa poziomy pozwoliło dopasować się do konturów terenu i funkcjonalnie oddzielić część dzienną od strefy prywatnej. Skrzydło z sypialniami, wykonane z drewna, zbliża się do brzegu jeziora, tworząc bardziej intymną przestrzeń w stylu domku letniskowego lub hangaru na łodzie. Południowe światło przenika przez liście eukaliptusów i wprowadza ciepły klimat do wnętrz. Energia cieplna pozyskiwana jest z jeziora dzięki geotermalnej pompie ciepła z pętlą wodną, natomiast 72 panele fotowoltaiczne zaspokajają zapotrzebowanie na prąd i pozwalają oddawać nadwyżki energii do sieci. Dom zaprojektowano jako niemal całkowicie samowystarczalny – pod względem energii, wody i komfortu cieplnego.

Fot. Peter Mathew | Arch. BIOTOPE ARCHITECTURE + INTERIORS

Materiały użyte w budowie zostały starannie dobrane z uwzględnieniem lokalnego kontekstu. Zastosowano połączenie drewna, kamienia i stali corten, które nadają bryłom trwałość i wpisują się w wiejski krajobraz. Kamienna forma nowoczesnej stodoły reprezentuje strefę publiczną domu – z kuchnią, jadalnią i salonem – natomiast drewniana część mieści prywatne pomieszczenia. Ręcznie obrabiany kamień i kratownice z recyklingu wzmacniają poczucie autentyczności, a corten nawiązuje do tradycyjnych budynków gospodarczych i wymaga minimalnej konserwacji. Projekt to efekt ścisłej współpracy architektów, rzemieślników i lokalnych budowniczych – dowód na to, że zrównoważona architektura może łączyć piękno, funkcjonalność i samowystarczalność w harmonii z naturą.