Fot. Jan Ove Christensen, Peter Jørgensen | Arch. Tegnestuen LOKAL

BrickShingle House

Projekt TK-33, znany także jako Brick Shingle House, to przykład, jak współczesna architektura może aktywnie zmniejszać emisję dwutlenku węgla, jednocześnie oferując nowoczesną i trwałą przestrzeń do życia. Dom powstał na obrzeżach niewielkiego miasteczka na północ od Kopenhagi i został zaprojektowany z myślą o dojrzałej parze, ale jego elastyczna struktura pozwala na zmiany funkcjonalne w przyszłości.

Fot. Jan Ove Christensen, Peter Jørgensen | Arch. Tegnestuen LOKAL

Idea i kontekst

Jednorodzinny dom wciąż pozostaje jedną z najpopularniejszych form zabudowy w Danii, dlatego to właśnie w tej typologii architekci widzą ogromny potencjał do ograniczania emisji. Celem TK-33 było zidentyfikowanie najbardziej emisyjnych elementów tradycyjnego duńskiego domu i zastąpienie ich bardziej przyjaznymi środowisku odpowiednikami, przy zachowaniu współczesnego, eleganckiego języka architektonicznego.

Materiały i redukcja emisji

Tradycyjna konstrukcja nośna z betonu komórkowego została zastąpiona drewnianym szkieletem, co pozwoliło niemal całkowicie wyeliminować ślad węglowy związany z betonem. Zewnętrzną warstwę domu pokryto cienką, zaledwie 13-milimetrową okładziną z cegły układanej w formie gontu. Dzięki temu objętość materiału została znacząco zredukowana, a emisje spadły. System elewacyjny posiada certyfikat Cradle-to-Cradle, co oznacza, że ceglane gonty można w przyszłości wymieniać częściowo lub w całości, a ich ponowne wykorzystanie staje się realną praktyką.

Fot. Jan Ove Christensen, Peter Jørgensen | Arch. Tegnestuen LOKAL

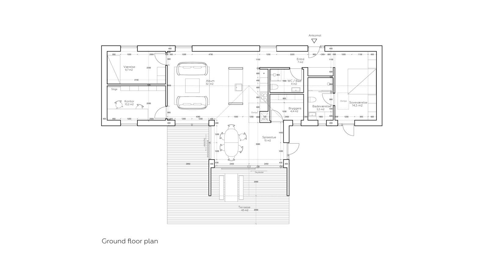
Forma i układ funkcjonalny

Dom dzieli się na część prywatną i część społeczną, które spotykają się w centralnie usytuowanej strefie dziennej. Otwarta kuchnia i wysoki salon w pełni korzystają z widoków na naturalny krajobraz, wpuszczając do wnętrza światło i tworząc poczucie bliskości z otoczeniem. Elastyczność funkcji sprawia, że budynek może odpowiadać na zmieniające się potrzeby mieszkańców i gości bez konieczności kosztownych przebudów.

Zrównoważone rozwiązania

TK-33 to dom zaprojektowany z myślą o niskim śladzie węglowym na każdym etapie użytkowania. Oprócz redukcji emisji związanej z materiałami, architekci zadbali o możliwość naturalnej wentylacji, wysoką trwałość fasady oraz prostą, zwartą formę. Instalacje techniczne skupiono w centralnym rdzeniu, obejmującym łazienki i pralnię, co dodatkowo uprościło proces budowy i zmniejszyło koszty.

Fot. Jan Ove Christensen, Peter Jørgensen | Arch. Tegnestuen LOKAL

Atmosfera i charakter domu

Brick Shingle House łączy tradycję i nowoczesność – cegła, drewno i prosta forma dachowa nawiązują do lokalnej architektury, a jednocześnie tworzą wizję zrównoważonego domu przyszłości. Dzięki ograniczonej palecie materiałów i subtelnej estetyce projekt nie tylko wpisuje się w krajobraz, ale też wyznacza kierunek dla redukcji emisji w budownictwie jednorodzinnym w Danii.