Fot. Laetitia Boudaud, Stephane Groleau | Arch. Lee and Macgillivray Architecture Studio (LAMAS)

Renowacja farmyw Kanadzie

Właściciele tego domu to para farmerów i artystów, która od lat związana jest z okolicą North Hatley w Kanadzie. Ich pasją jest ochrona tutejszych terenów i ratowanie starych zabudowań rolniczych. Zaledwie półtorej godziny drogi od Montrealu krajobraz zmienia się w malownicze, zielone tereny rolnicze, pełne jezior i niewielkich wzgórz, które są świadectwem kultury wczesnych amerykańskich kolonii.

Fot. Laetitia Boudaud, Stephane Groleau | Arch. Lee and Macgillivray Architecture Studio (LAMAS)

Tutejsze tereny stały się inspiracją dla projektu „Townships Farmhouse” autorstwa Lee and Macgillivray Architecture Studio (LAMAS). Dom zbudowany został z drewna pozyskanego z rozbiórki starych stodołów w prowincji Ontario, a jego konstrukcja idealnie wpisuje się w rytm życia na farmie, dostosowując się do sezonowych zmian. Duże drewniane drzwi w stylu nowoczesnej stodoły pełnią zarówno funkcję estetyczną, jak i użytkową. Zimą chronią przed wiatrem, a latem zapewniają osłonę przed kurzem podczas prac polowych.

Fot. Laetitia Boudaud, Stephane Groleau | Arch. Lee and Macgillivray Architecture Studio (LAMAS)

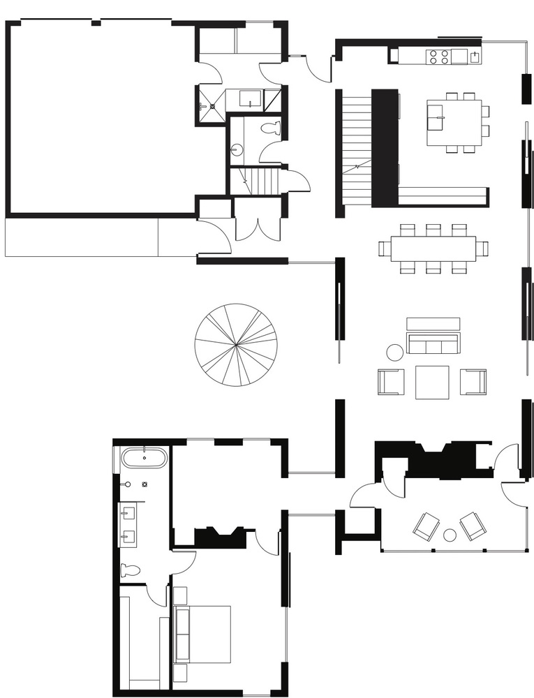
„Projekt tego domu miał od samego początku być wyrazem ewolucji tradycyjnych zabudowań gospodarczych i przykładem kreatywnego wykorzystania przestrzeni” – mówi Vivian Lee z LAMAS. Centralny dziedziniec to połączenie stodoły w stylu Quebecu, z przestronnym strychem na siano, oraz stodoły z Ontario z lat 1850, o kształcie litery U. Ta hybrydowa konstrukcja pozwala na otwarcie przestrzeni na widok malowniczych wzgórz, jabłoni oraz jeziora Massawippi, które były kluczowe dla projektu.

Fot. Laetitia Boudaud, Stephane Groleau | Arch. Lee and Macgillivray Architecture Studio (LAMAS)

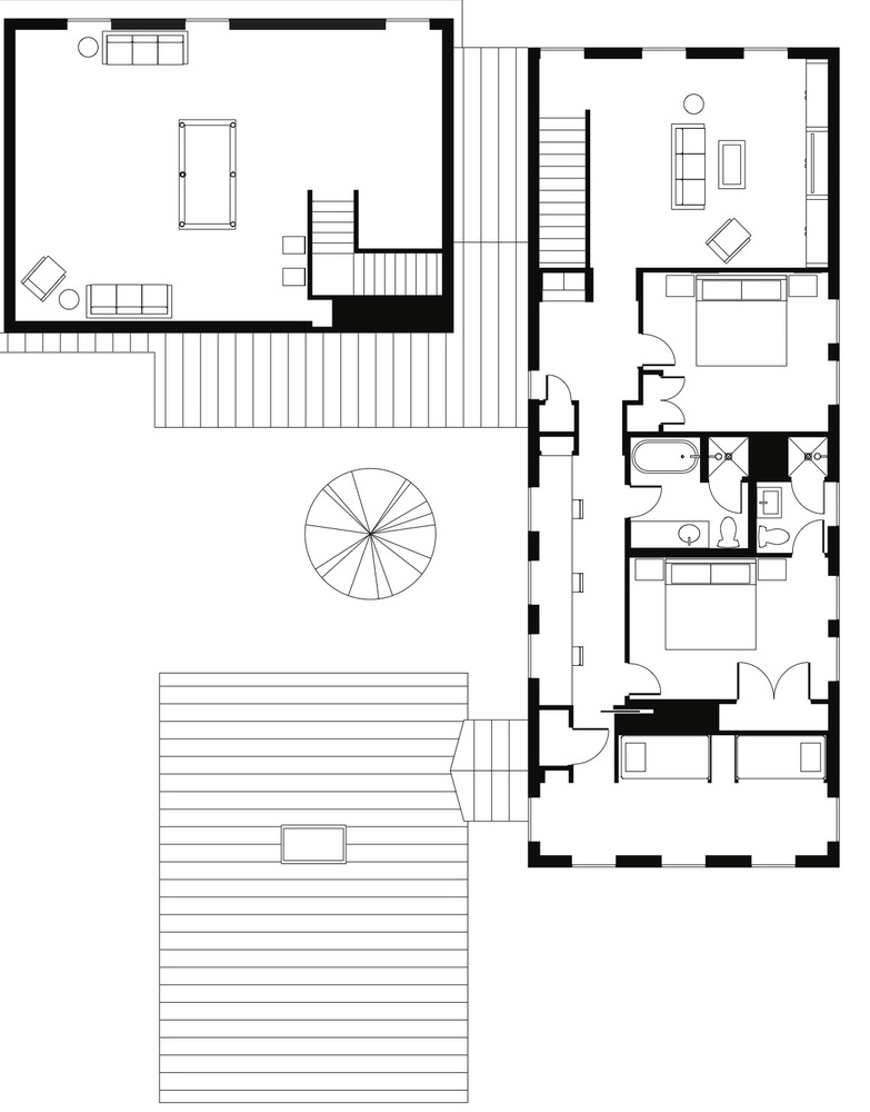
„Właściciele mają unikalne widoki na pole owsa, zbocza górskie i farmę koni, więc projekt domu został zorganizowany wokół tych naturalnych obrazów” – wyjaśnia James Macgillivray z LAMAS. Okna pełnią funkcję ram dla tych krajobrazów, tworząc malownicze obrazy, które są częścią codziennego życia mieszkańców.