Fot. Robertino Nikolic, Jeroen Musch | Arch. Studio Prototype

Minimalistyczna willawpisana w krajobraz

Villa Schoorl to zmodernizowany budynek rolniczy, przekształcony przez pracownię Studio PROTOTYPE w funkcjonalny, nowoczesny dom rodzinny. Położony w miasteczku Schoorl, na terenie jednych z najpiękniejszych wydmowych krajobrazów Holandii, dom harmonijnie łączy nowoczesną architekturę z tradycyjną tożsamością miejsca.

Fot. Robertino Nikolic, Jeroen Musch | Arch. Studio Prototype

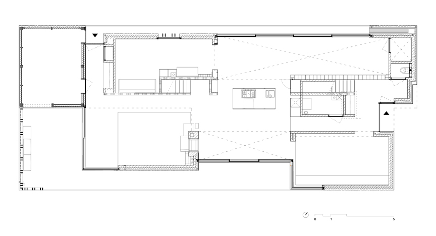
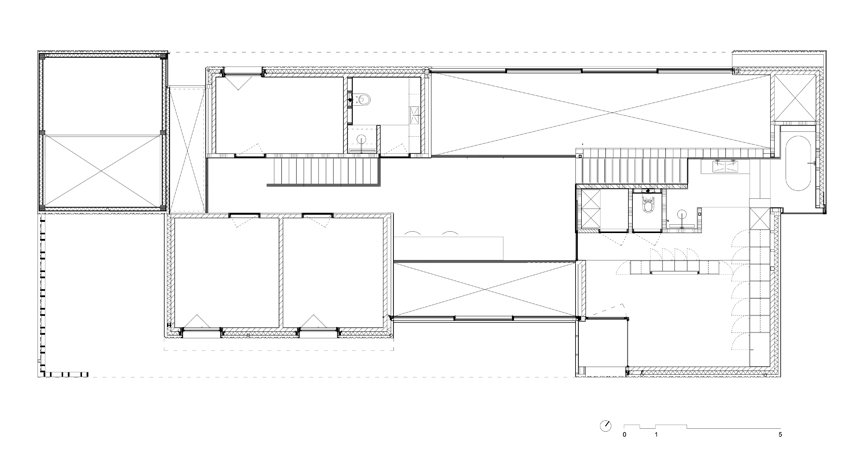
Projekt opiera się na wyraźnym podziale przestrzeni: otwarte i zamknięte strefy organizują życie domowe zgodnie z potrzebami mieszkańców. Zainspirowany typowym holenderskim układem farmy, dom zachowuje prostotę formy i czytelność planu. Jego bryła nawiązuje do archetypu nowoczesnej stodoły, a sam układ przestrzenny odpowiada na potrzeby współczesnej rodziny.

Fot. Robertino Nikolic, Jeroen Musch | Arch. Studio Prototype

Zewnętrzna powłoka domu została wykonana z czarnego metalu – anodyzowane aluminium zdobi elewacje boczne i dach, natomiast elewacja frontowa z walcowanej blachy stalowej wyróżnia się naturalną strukturą i unikalnymi przebarwieniami. Aby zachować surowe piękno materiału w słonym, nadmorskim klimacie, studio opracowało specjalną, przezroczystą powłokę ochronną.

Fot. Robertino Nikolic, Jeroen Musch | Arch. Studio Prototype

Wnętrza zaprojektowano z dużą dbałością o detal – od układu funkcjonalnego po zrównoważone materiały i przemyślane połączenia przestrzeni. Część pomieszczeń nawiązuje skalą i formą do lokalnej architektury, co sprawia, że dom naturalnie wpisuje się w otoczenie. Efektem końcowym jest architektura nowoczesna, ale nienarzucająca się, w pełni zintegrowana z krajobrazem i codziennym rytmem życia.