Fot. 645studio | Arch. Erdem Hamza Architecture

Historia wnowoczesnym wydaniu

Alaçatı Stone House to 130-letni kamienny dom w Turcji, odnowiony przez pracownię Erdem Hamza Architecture. Dawna rezydencja, związana z produkcją oliwy i żywicy, dziś stała się komfortowym miejscem życia, łączącym historię z nowoczesnością.

Fot. 645studio | Arch. Erdem Hamza Architecture

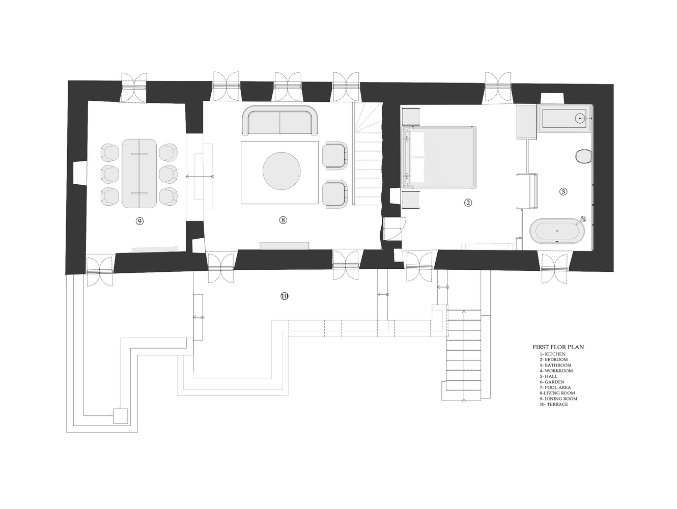
Dwupoziomowy dom z centralnym ogrodem oferuje funkcjonalny układ: na parterze znajdują się trzy sypialnie, kuchnia i gabinet, a na piętrze salon, jadalnia i dodatkowa sypialnia. Basen w ogrodzie odbija zieleń i światło, tworząc żywą, zmienną przestrzeń.

Fot. 645studio | Arch. Erdem Hamza Architecture

Zachowana kamienna elewacja przenika do wnętrz, nadając im naturalny, surowy charakter. Wnętrza zaprojektowano z myślą o współczesnym stylu życia – lekkie materiały, gra światła i lokalne rzemiosło tworzą spójną, ciepłą atmosferę. Inspirowane formą nowoczesnej stodoły, przestrzenie są otwarte, funkcjonalne i pełne światła.

Fot. 645studio | Arch. Erdem Hamza Architecture

To miejsce, które łączy lokalną tożsamość, historię i nowoczesną architekturę, oferując mieszkańcom spokój i wygodę.