Fot. Raphaël Thibodeau | Arch. Atelier Boom-Town

Dom jednorodzinny zfunkcjonalnym układem

Résidence Rabaska to wyjątkowy przykład nowoczesnej stodoły, położonej malowniczo u zbiegu rzeki Diable, liniowego parku Le P’tit Train du Nord oraz 16. dołka pola golfowego La Bête w sercu Mont-Tremblant, Québec. Zlokalizowana pierwotnie w zacienionym zagajniku wysokich sosen, rezydencja musiała zostać przystosowana do nowych warunków krajobrazowych po gwałtownej burzy w 2022 roku, która zniszczyła część lasu przed zakończeniem budowy. Dziś budynek dumnie stoi na równym, otwartym terenie, oferując idealną równowagę między architekturą a naturą.

Fot. Raphaël Thibodeau | Arch. Atelier Boom-Town

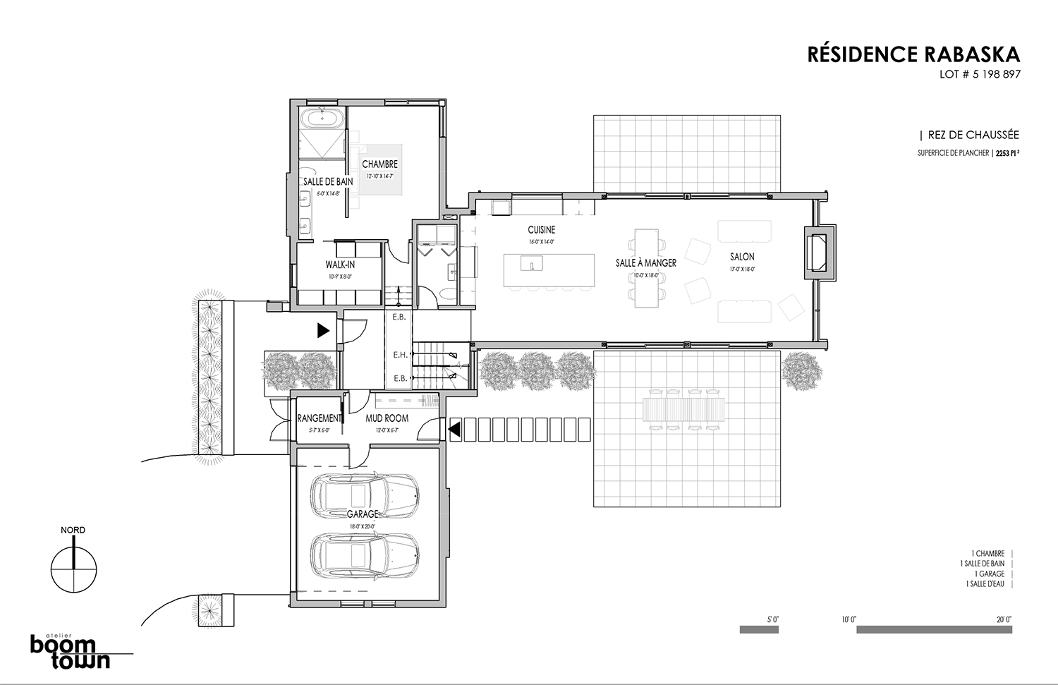
Bryła Résidence Rabaska przypomina literę T – dwie dwuspadowe formy przecinają się, tworząc wyraźny podział funkcjonalny. Główne skrzydło, parterowe, pełni funkcję dzienną – znajduje się tu nowoczesna kuchnia, przestronna jadalnia oraz otwarty salon z kominkiem. Dwa duże, 5-metrowe przeszklenia wschodnio-zachodnie otwierają dom na widok pola golfowego oraz na taras i ogród, zapewniając naturalne światło i spektakularne widoki. Kamienny kominek przy południowym szczycie oraz panoramiczne okna po obu stronach kadrują widok na ocalały las sosnowy.

Fot. Raphaël Thibodeau | Arch. Atelier Boom-Town

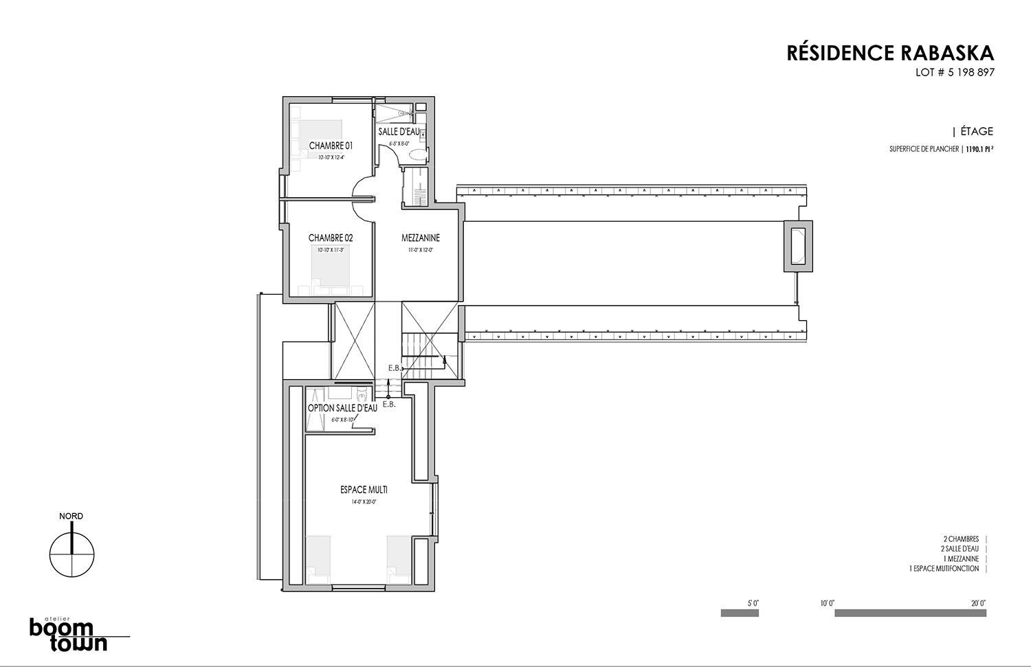
Drugie, dwukondygnacyjne skrzydło mieści prywatną strefę nocną. Główna sypialnia, z własną łazienką i garderobą, jest delikatnie wpuszczona w podłogę dla większej intymności. Dwie sypialnie gościnne umieszczono na piętrze, a poniżej zlokalizowano biuro otwarte na wejściowy hol oraz dodatkową łazienkę. W zachodniej części znajduje się garaż dwustanowiskowy, a nad nim wielofunkcyjny pokój rodzinny, który może służyć jako sala telewizyjna, pokój gier lub strefa relaksu. Wszystkie części domu wieńczą stropy katedralne, podkreślające otwartość i przestrzeń charakterystyczną dla stylu nowoczesnej stodoły. Sufity wykończono naturalną boazerią na parterze oraz gładkim tynkiem gipsowym na piętrze. Drewniane podłogi dodają ciepła, a płyty betonowe z ogrzewaniem podłogowym zapewniają komfort przez cały rok.

Fot. Raphaël Thibodeau | Arch. Atelier Boom-Town

Centralna część domu łączy wszystkie strefy – znajduje się tu hol wejściowy, klatka schodowa oraz przestronny przedsionek z szatnią. Przeszklony chodnik z drewnianymi detalami łączy oba poziomy i prowadzi do pomieszczeń prywatnych. Z zewnątrz dom wyróżnia się trzema wyraźnymi skrzydłami o dwuspadowych dachach, wykończonymi białą deską elewacyjną ułożoną pionowo, oraz centralnym łącznikiem z płaskim dachem, pokrytym czarnymi panelami betonowymi. Czarne świetliki dachowe i markiza nad głównym wejściem nadają nowoczesnego charakteru i chronią przed niepogodą.