Fot. James Brittain | Arch. Jonathan Tuckey Design

Nowe życiekaplicy

Klient zwrócił się do architektów z prośbą o ponowne zaadaptowanie kaplicy na nowy, stały dom rodzinny. Stara Kaplica znajduje się na obszarze o wybitnych walorach przyrodniczych w południowym Devon. Powierzchnia działki wynosi około 520 metrów kwadratowych; Nisko odsłonięte kamienne ściany wyznaczają krawędzie posesji oddzielającej ją od głównej drogi i sąsiednich budynków. Zbudowana w pierwszej połowie XX wieku, Stara Kaplica została przekształcona w budynek mieszkalny w latach 70. XX wieku. W latach 90. dodano szereg interwencji, z których większość nie ma żadnej wartości historycznej ani architektonicznej.

Fot. James Brittain | Arch. Jonathan Tuckey Design

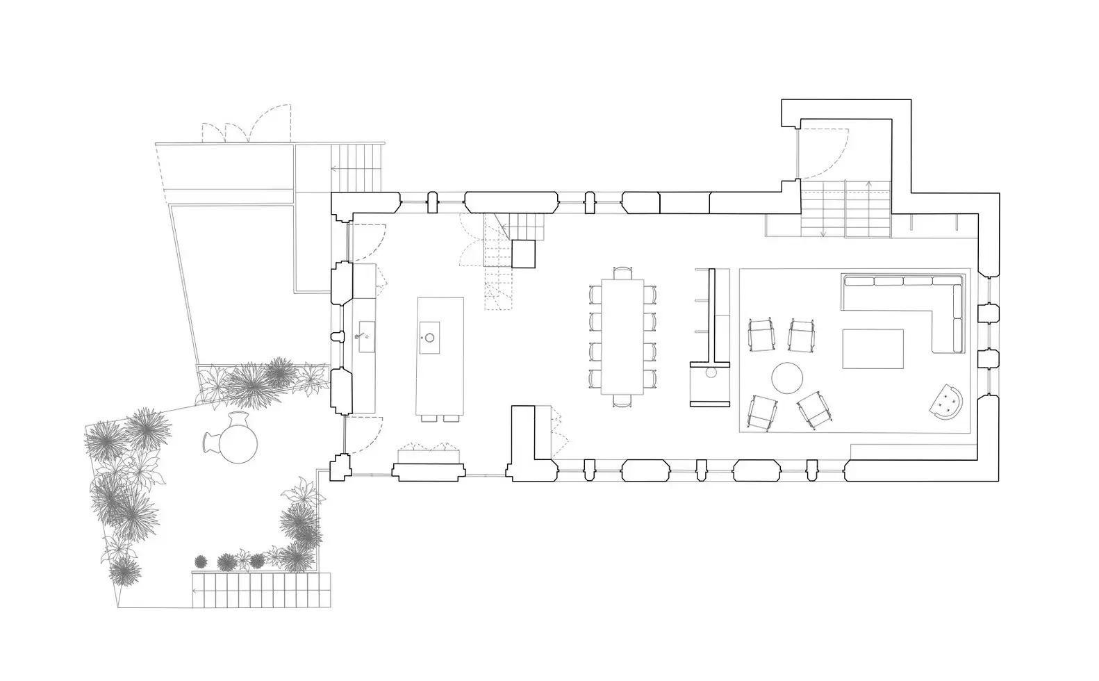
Poprzez serię przemyślanych interwencji projekt miał na celu odkrycie pierwotnego charakteru kaplicy i stworzenie bardziej odpowiedniej i charakterystycznej przestrzeni. Usunięto wcześniejsze dodatki z lat 90. i przywrócono dawne północne wejście do kaplicy na główną klatkę schodową. Umożliwia to bardziej płynną cyrkulację w całej przestrzeni oraz pomiędzy pomieszczeniami mieszkalnymi na pierwszym piętrze i sypialniami na piętrze.

Fot. James Brittain | Arch. Jonathan Tuckey Design

Nowe zmiany w dawnym budynku kaplicy były minimalne. Obejmowały wprowadzenie nowej dobudówki umieszczonej pomiędzy południowo-zachodnim narożnikiem kaplicy a kamiennym murem graniczącym. Przebudowana parterowa bryła powiększa powierzchnię parteru kaplicy. Tworzy jednocześnie taras dostępny z pierwszego piętra. Nowe patio wypełnia sypialnie na parterze naturalnym światłem i tworzy spokojną przestrzeń zewnętrzną pełną roślinności.

Fot. James Brittain | Arch. Jonathan Tuckey Design

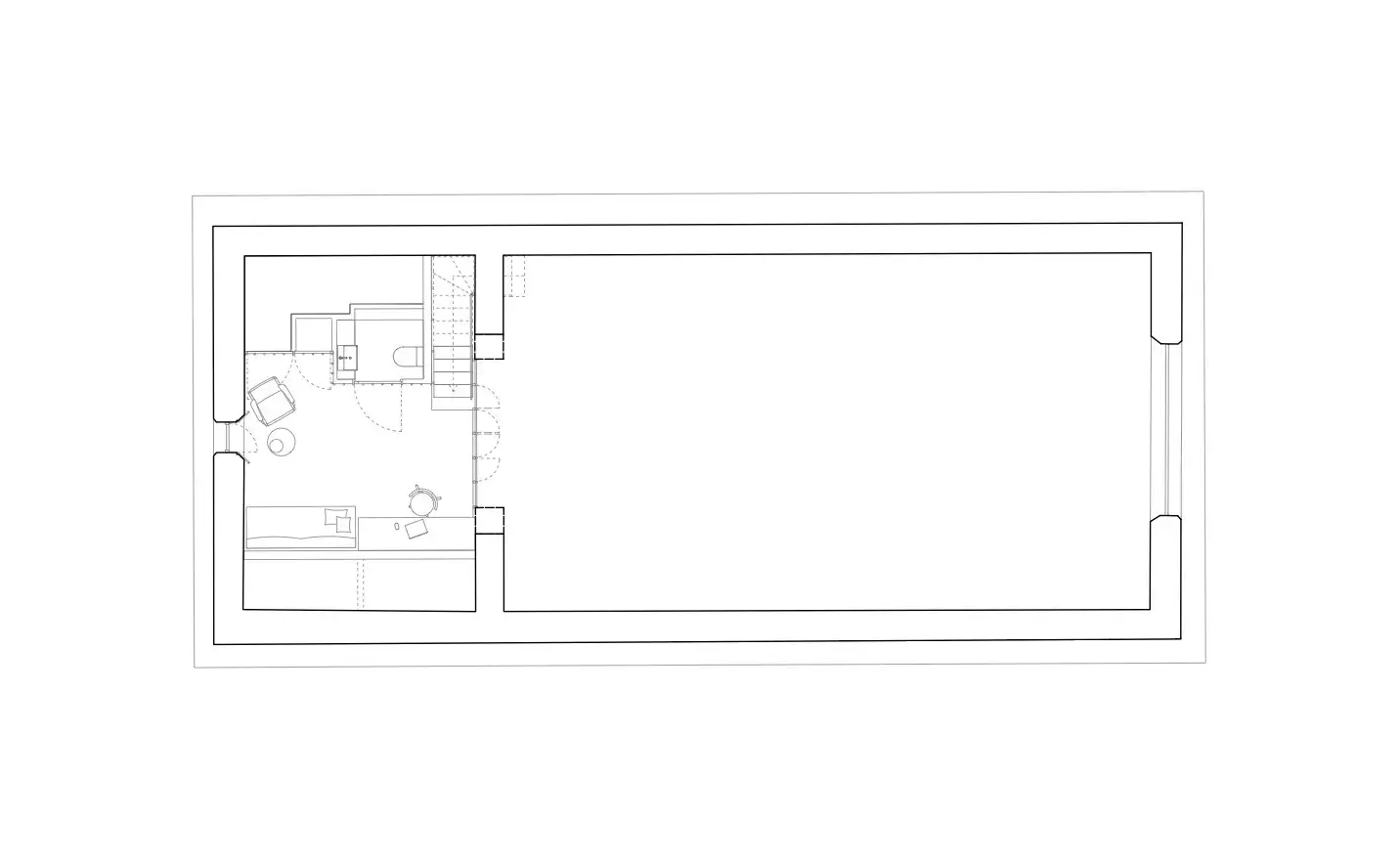
Wewnętrz przeprojektowano układ parteru, aby stworzyć miejsce na 4 sypialnie i łazienki. Wszystko ze spokojną paletą materiałów i niszami w otynkowanych ścianach, aby zwiększyć przestrzeń do przechowywania. Wielki, otwarty plan kaplicy na poziomie pierwszego piętra zaprojektowano tak, aby pomieścić salon, jadalnię i kuchnię, w których może gromadzić się cała rodzina. Na poddaszu dodano dodatkową sypialnię z łazienką.